Back to search results

Church Lane, South Muskham, Newark

Asking Price Of
£215,000
For Sale
  • ionicons-v5-g 3
  • 1
  • 1

Key Features

  • Check Spacious Three Bedroom Detached Bungalow

  • Check Large Lounge/Diner

  • Check Kitchen

  • Check Three Good Size Bedrooms

  • Check Conservatory

  • Check Store

  • Check Large Front and Rear Gardens

  • Check Integral Garage

  • Check In Need of Full Refurbishment - No Upward Chain

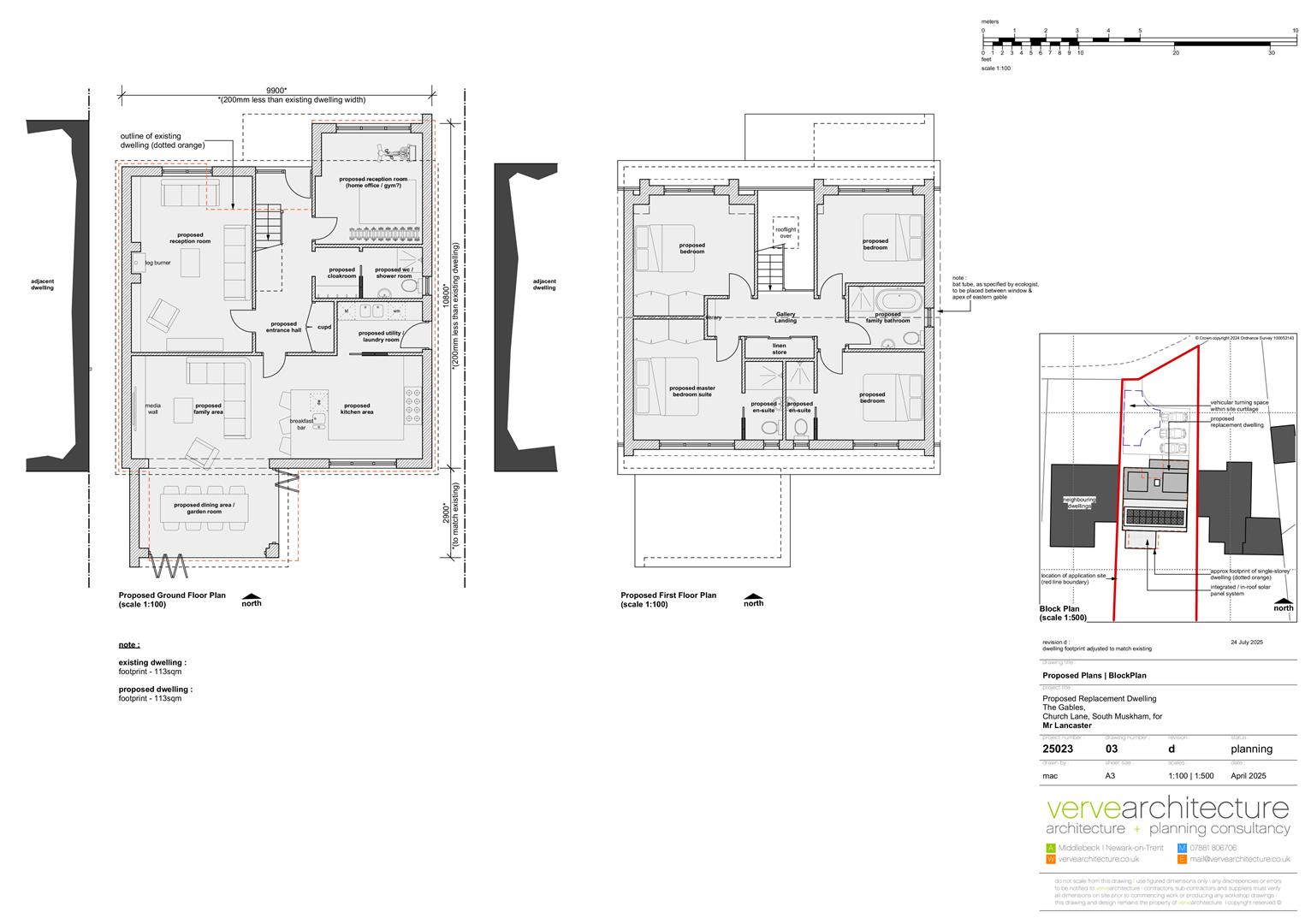
  • Check Planning Granted for a 4 Bedroom Detached House - 25/00807/FUL

Request Viewing

Property Details

PLANNING PERMISSION

Planning has been granted for the demolition of the current dwelling and subsequent building of a 4 Bedroom Detached House. All Planning information can be found view the Newark and Sherwood Council Planning Webiste using the reference - 25/00807/FUL

Entrance Hall

Lounge/Diner (5.94m x 4.27m)

Window to the side. Doors into the conservatory.

Conservatory (4.72m x 2.74m)

Kitchen (3.51m x 2.44m)

Window to the rear. Door to the side porch.

Rear Porch

Store Room

Bedroom (3.35m x 3.35m)

Window to the front.

Bedroom (3.35m x 2.82m)

Window to the side.

Bedroom (3.35m x 2.39m)

Window to the front.

Bathroom (2.44m x 1.73m)

Garage (4.95m x 2.44m)

Exterior

Location

Floorplan