Back to search results

Cannon Street, Nottingham

Asking Price Of
£280,000
For Sale
  • ionicons-v5-g 3
  • 1
  • 2

Key Features

  • Check Three Bedroom Semi Detached House

  • Check No Upward Chain

  • Check Recently Refurbished

  • Check Good Size Bedrooms

  • Check Open Plan Living

  • Check Courtyard Garden

  • Check Sought After Location

Request Viewing

Property Details

Location

Perfectly located in the heart of Sherwood, the property is just a short walk from the area's vibrant high street, with its mix of independent shops, a huge number of cafes and restaurants and excellent transport links into Nottingham City Centre. Many schools and parks such as Woodthorpe which offers a golf course, playground, cafe and garden centre are also within an easy walk away, making this an ideal choice for families.

Accommodation

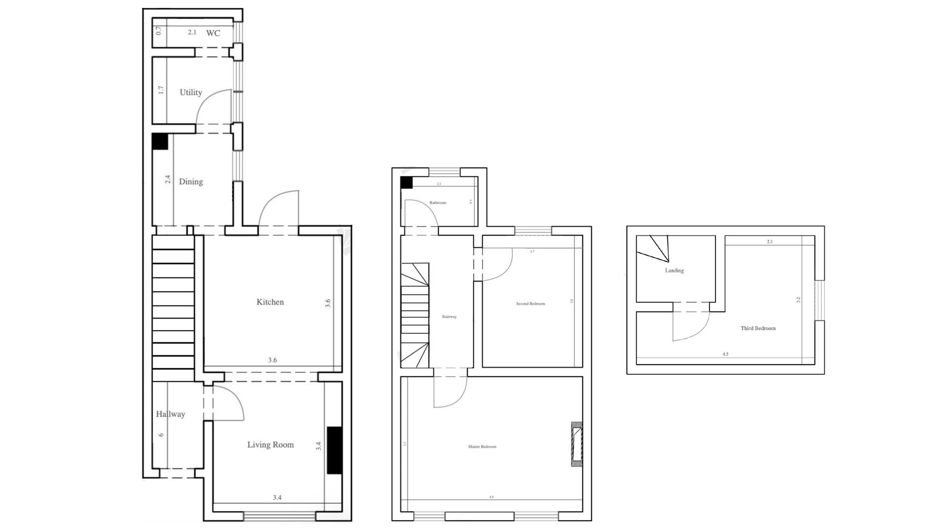
Visitors are welcomed into the entrance hall which leads to the the open plan living area and stairs with runner rising to the first floor landing. The main reception space is the open plan kitchen with a generous island and bar stools at one end and the living room with log burner at the other. This area has hard flooring with a fully glazed door opening onto the garden. This is a well proportioned family space, comprising an extensive collection of storage units under fitted work surfaces, incorporating an integrated oven and grill, fridge/freezer and dishwasher. This leads through to the dining room which could also be used as a playroom. Further to the rear there is a utility room housing the boiler and space for a washing machine with more useful cupboard space. Finally there is the WC.
The first floor landing provides
the neatly appointed family bathroom, master bedroom to the front of the house and a double bedroom to the rear. The third double bedroom is on the second floor.
The rear south facing garden has been landscaped with decking leading to a checkerboard patio and flower bed. This provides a lovely area for outdoor entertaining.
The property has a generous cellar offering further storage space.
Viewing is strongly recommended and can be arranged day or evening.

Entrance Hall

Door into the Lounge. Stairs to the first floor.

Lounge (3.4 x 3.4)

Window to the front. Opens into the Dining Room.

Kitchen (3.6 x 3.6)

Dining Room (2.4 x 2.1)

Utility Room (1.7 x 2.1)

W.C (0.7 x 2.1)

First Floor Landing

Master Bedroom (4.9 x 3.7)

Bedroom Two (2.7 x 3.6)

Bathroom (2.1 x 1.4)

Second Floor Landing (4.5 max x 3.2)

Location

Floorplan

EPC

Property EPC